第十四章 墙面与柱面装饰装修构造图
第八节 金属材料饰面构造

图 14-8-1 铝及塑铝板墙面(一)构造节点图

图 14-8-2 铝及塑铝板墙面(一)三维图

图 14-8-3 铝及塑铝板墙面(二)构造节点图

图 14-8-4 铝及塑铝板墙面(二)三维图

图 14-8-5 铝及塑铝板墙面(三)构造节点图

图 14-8-6 铝及塑铝板墙面(三)三维图

图 14-8-7 铝及塑铝板墙面(四)构造节点图

图 14-8-8 铝及塑铝板墙面(四)三维图

图 14-8-9 铝及塑铝板墙面(五)构造节点图

图 14-8-10 铝及塑铝板墙面(五)三维图

图 14-8-11 铝及塑铝板墙面(六)构造节点图

图 14-8-12 铝及塑铝板墙面(六)三维图

图 14-8-13 铝板墙面阳角(一)构造节点图

图 14-8-14 铝板墙面阳角(一)三维图

图 14-8-15 铝板墙面阳角(二)构造节点图

图 14-8-16 铝板墙面阳角(二)三维图

图 14-8-17 铝板墙面阳角(三)构造节点图

图 14-8-18 铝板墙面阳角(三)三维图

图 14-8-19 铝板墙面阳角(四)构造节点图

图 14-8-20 铝板墙面阳角(四)三维图

图 14-8-21 铝板墙面阳角(五)构造节点图

图 14-8-22 铝板墙面阳角(五)三维图

图 14-8-23 铝板墙面阳角(六)构造节点图

图 14-8-24 铝板墙面阳角(六)三维图

图 14-8-25 铝板墙面阴角(一)构造节点图

图 14-8-26 铝板墙面阴角(一)三维图

图 14-8-27 铝板墙面阴角(二)构造节点图

图 14-8-28 铝板墙面阴角(二)三维图

图 14-8-29 铝板墙面阴角(三)构造节点图

图 14-8-30 铝板墙面阴角(三)三维图

图 14-8-31 铝板墙面阴角(四)构造节点图

图 14-8-32 铝板墙面阴角(四)三维图

图 14-8-33 铝板墙面阴角(五)构造节点图

图 14-8-34 铝板墙面阴角(五)三维图

图 14-8-35 铝板墙面阴角(六)构造节点图

图 14-8-36 铝板墙面阴角(六)三维图

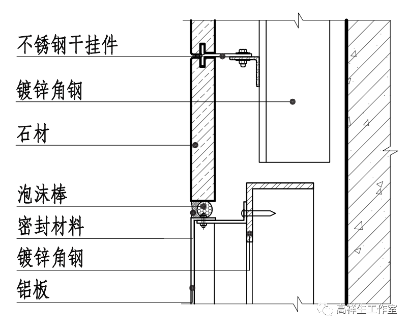
图 14-8-37 铝板与石材交接墙面(一)构造节点图

图 14-8-38 铝板与石材交接墙面(一)三维图
图 14-8-39 铝板与石材交接墙面(二)构造节点图

图 14-8-40 铝板与石材交接墙面(二)三维图

图 14-8-41 铝板与石材交接墙面(三)构造节点图

图 14-8-42 铝板与石材交接墙面(三)三维图

图 14-8-43 铝板与石材交接墙面(四)三维图

图 14-8-44 铝板与石材交接墙面(四)构造节点图

图 14-8-45 不锈钢板墙面(一)构造节点图

图 14-8-46 不锈钢板墙面(一)三维图

图 14-8-47 不锈钢板墙面(二)构造节点图

图 14-8-48 不锈钢板墙面(二)三维图

图 14-8-49 不锈钢板墙面(三)构造节点图

图 14-8-50 不锈钢板墙面(三)三维图

图 14-8-51 不锈钢板墙面(四)构造节点图

图 14-8-52 不锈钢板墙面(四)三维图

图 14-8-53 不锈钢板墙面(五)构造节点图

图 14-8-54 不锈钢板墙面(五)三维图

图 14-8-55 金属蜂窝板墙面(一)三维图

图 14-8-56 金属蜂窝板墙面(二)三维图

图 14-8-57 金属蜂窝板墙面(一)构造节点图

图 14-8-58 金属蜂窝板墙面构造(二)构造节点图

图 14-8-59 搪瓷钢板干挂墙体(背栓式)三维图

图 14-8-60 搪瓷钢板干挂墙体(背栓式)横剖构造节点图

图 14-8-61 搪瓷钢板干挂墙体(背栓式)竖剖构造节点图

图 14-8-62 搪瓷钢板干挂墙体(背栓式)竖剖三维图

图 14-8-63 搪瓷钢板与石材交接墙面三维图

图 14-8-64 搪瓷钢板与石材交接墙面构造节点图

图 14-8-65 搪瓷钢板包圆柱构造节点图

图 14-8-66 搪瓷钢板包圆柱三维图
